Runner-up at Europan 11, Leeuwarden, The Netherlands. By Leonardo Zuccaro Marchi, Annalisa Romani (COPE), Alina Lippiello, Ivo Covic (LAP)
The new residential area is totally immersed in a water landscape and it is well connected with both the existing urban structure and the countryside as well. Morphologically it is formed by narrow strip islands, which from one side follow the city’s urban direction on North while from the other they guarantee a continuity, through their repetition, of the neighborhoods towards East.

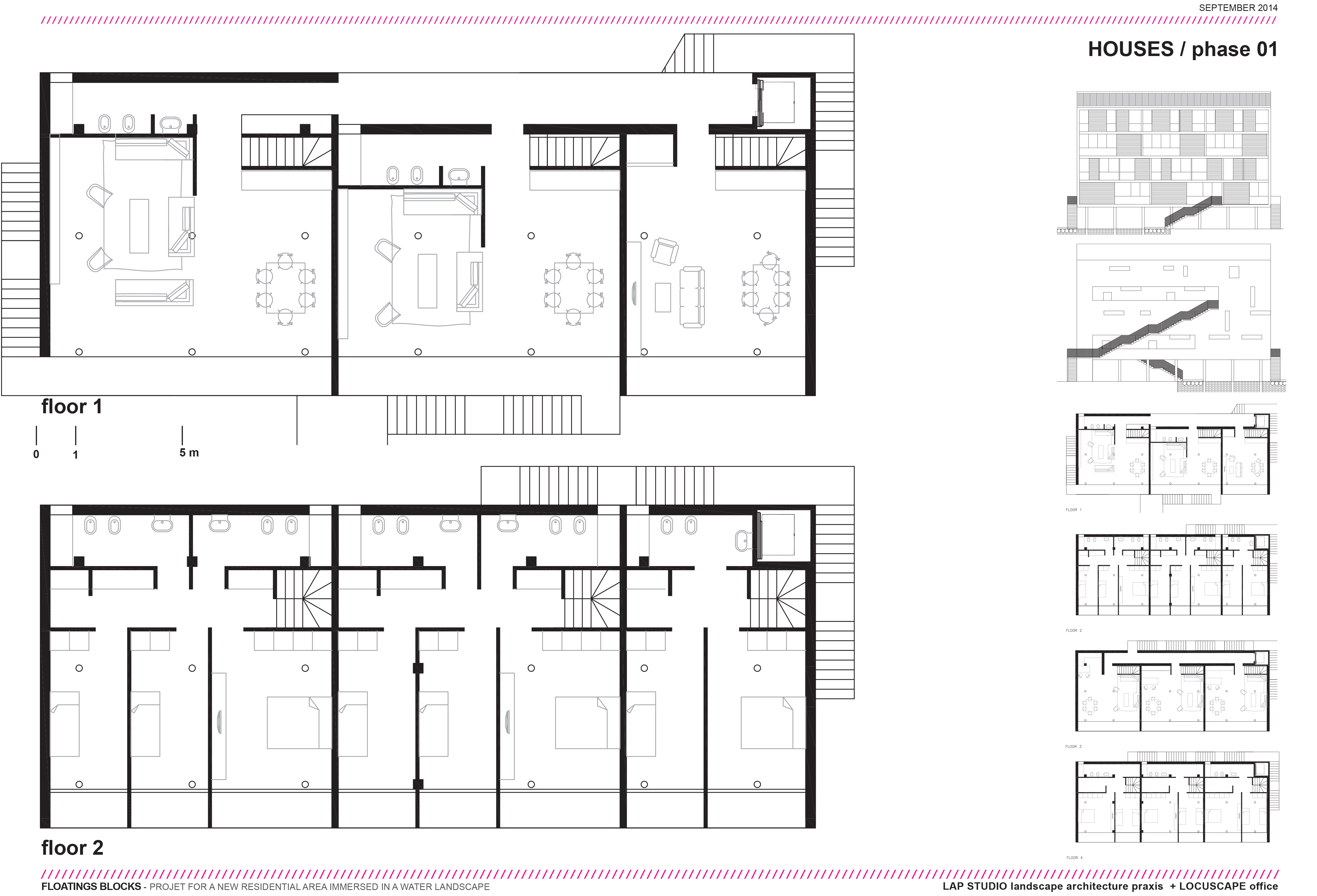
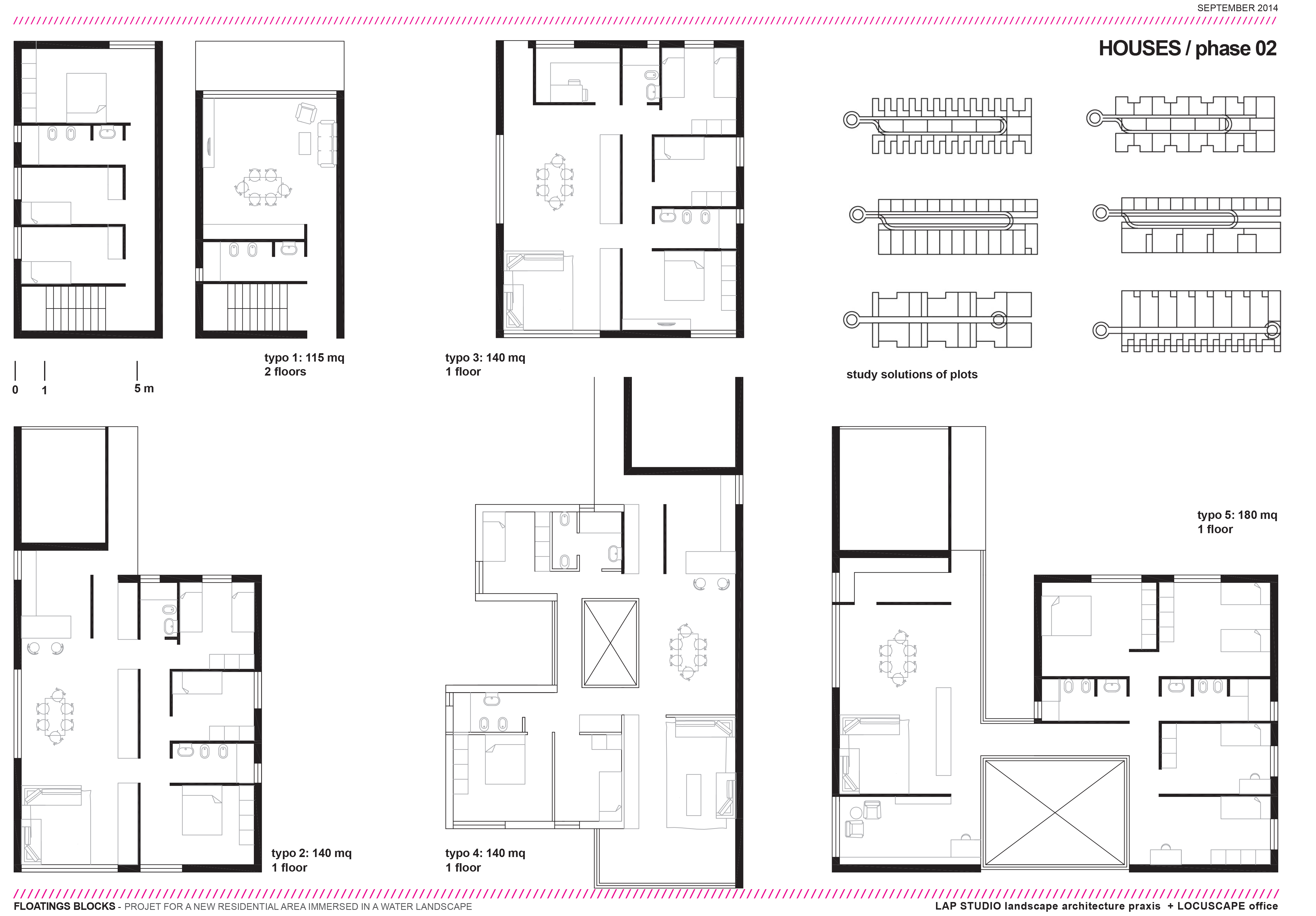
The master-plan hosts 400 houses with direct view and contact with water and is divided in three main sectors: the “Venice Arsenale” on the West, the “Tokyo bay” on the center and the “San Francisco bay” on the East. In The ‘Tokyo Bay’, the main dry lands are spaced by smaller strips of ground, which are wetlands of sustainability, with presence of sport facilities, solar panels wind pales or greenery in order to create a self-sufficient neighborhood. In case of necessity these lands can be occupied by new houses developments as well.

The Islands may be submerged during some periods of the year. Therefore the section is sloping and the vegetation is thought to be adaptable with different humidity condition. Community gardens will find place in the highest part close to the bicycle path. They will help the population to create a sort of ‘sustainable neighborhood’ with both the energetic and the economic self-subsitance is desirable. In the ‘Venice bay’, these private spaces become micro-public spaces keeping their identity, intimacy discreation as well.






